목차
화장품 제조업 식약청 등록평면도 설계 포함 - 크몽
행정사법인청효 전문가의 창업·사업 서비스를 만나보세요. <p><strong><u>식품의약품안전처 대관 업무를 전문...
kmong.com
화장품을 직접 제조하여 판매하기 위해서는 반드시 「화장품법」에 따라 화장품제조업과 화장품책임판매업 등록이 필요합니다. 제조시설 기준에 맞추어 공간을 설계하고, 제조업과 책임판매업 민원을 동시에 신청해야 하며, 전문적인 컨설팅을 통해 기간을 단축할 수 있습니다.


화장품 직접 제조 및 판매 영업이란?
화장품 산업은 다른 업종과 달리 소비자의 피부에 직접 닿는 제품을 제조하고 판매하는 특성상 관련 법규가 엄격합니다. 특히 직접 제조하여 판매하려면 다음 두 가지 영업 등록을 반드시 마쳐야 합니다.
- 화장품제조업 등록
- 화장품책임판매업 등록 (직접 제조하여 판매 유형)
이 두 가지 등록을 모두 마쳐야만 자사의 브랜드로 직접 제조한 화장품을 소비자에게 유통·판매할 수 있습니다.
화장품법에서 정한 영업의 종류
화장품법 제2조의2에서 정한 화장품 관련 영업의 종류는 크게 다음과 같이 분류됩니다.
- 화장품 제조업
- 화장품을 제조하거나 가공하는 업종
- 화장품 책임판매업
- 화장품 유통 및 판매 책임을 지는 업종으로, 제조사의 브랜드로 유통할 경우 등록 필요
- 맞춤형 화장품 판매업
- 소비자의 요구에 따라 맞춤형으로 화장품을 제조하여 판매하는 업종
이 중에서 자신만의 브랜드로 직접 제조하고 판매하는 업체는 제조업 등록과 책임판매업 등록을 반드시 함께 진행해야 합니다.


화장품제조업과 책임판매업의 동시 등록 필요성
제조업 등록을 전제로 한 책임판매업 유형 선택
화장품책임판매업 등록 시에는 ‘직접 제조하여 판매하는 유형’을 선택해야 합니다. 이는 제조업 등록이 완료되었거나 제조업 민원이 동시에 진행 중임을 전제로 하는 유형입니다. 따라서 책임판매업 신청 시 반드시 제조업 민원이 진행 중임을 식약청에 고지하여 업무가 순차적으로 진행될 수 있도록 해야 합니다.
등록 기간 단축을 위한 전략적 접근
화장품 제조시설 기준에 맞게 시설을 설계하고 공사를 진행하는 동안, 동시에 제조업 등록과 책임판매업 등록 절차를 병행하면 등록 소요 시간을 현저히 줄일 수 있습니다.
실제로 화장품 제조시설 등록 시, 시설의 설계와 공사 일정, 행정 등록 신청 일정을 잘 조율해야 합니다. 이를 통해 불필요한 시간 소모를 방지하고 효율적으로 사업을 개시할 수 있습니다.

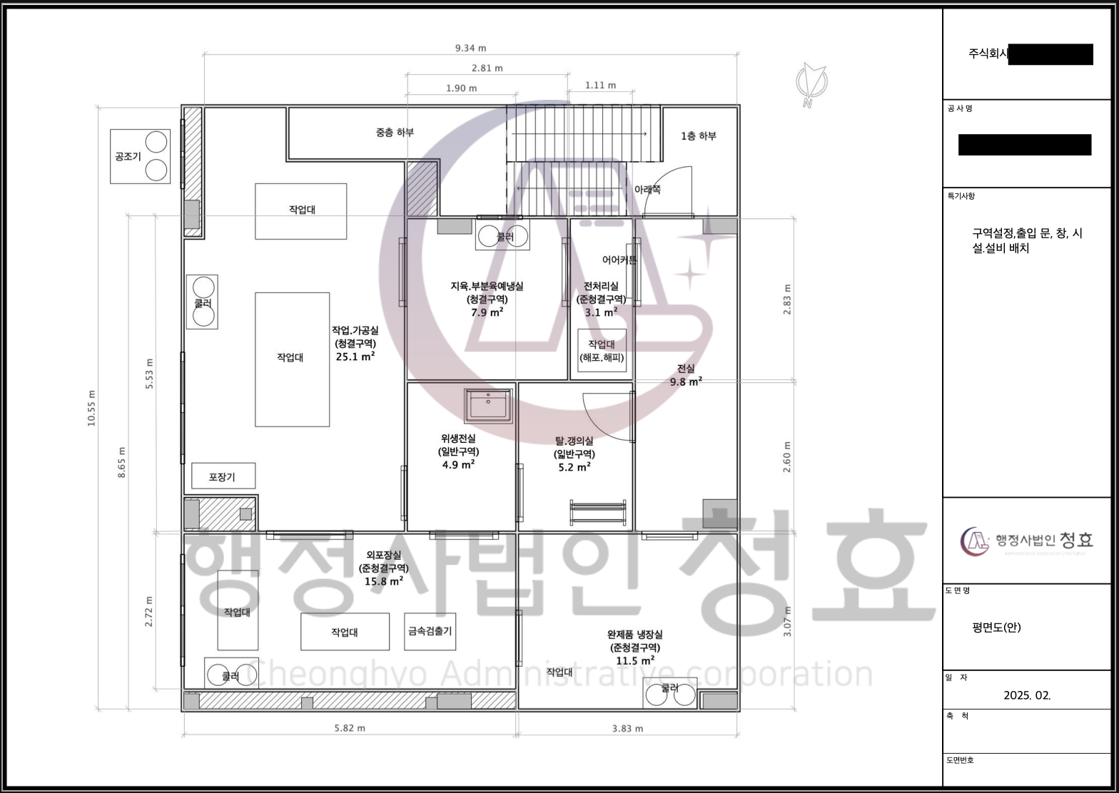
화장품 제조시설의 기준과 설계 시 유의점
제조시설 설계 시 필수 고려 사항
화장품 제조시설 설계 시 중요한 포인트는 크게 다음과 같습니다.
- 제조공간, 보관공간, 작업자 위생 공간 등 시설별 구획과 명확한 분리
- 위생적인 제조 환경을 유지할 수 있도록 공간 구획 설계
- 식약청 현장 실사 시 중점 점검사항인 위생 관리 체계, 환기 및 청결 관리 시스템 등 철저 준비
특히 제조 시설의 크기(면적)에 관한 제한은 별도로 없으며, 제조할 제품의 제형과 특성에 적합한 시설을 갖추기만 하면 됩니다. 많은 업체가 면적 제한에 대해 궁금해하지만, 법적으로 정해진 최소 면적 기준은 없습니다.
전문가의 사전 컨설팅으로 보완 없이 등록 가능
화장품 제조업 등록에서 가장 큰 난관은 시설 기준을 정확히 충족하는지 여부를 사전에 명확히 파악하는 것입니다. 이 과정에서 사전 컨설팅은 필수적입니다.
행정사법인 청효 등 전문 컨설팅 기관은 제조시설 설계 단계부터 식약청 현장 실사 시 중점 점검 포인트를 파악하여 사전에 대비할 수 있도록 돕습니다. 이를 통해 추가 보완 요청 없이 등록을 완료하는 사례가 많습니다.

실제 등록 사례를 통한 절차 안내
실제 화장품 제조업 및 책임판매업 등록 사례를 단계별로 안내하면 다음과 같습니다.
1단계: 제조시설 공간 설계 및 공사
- 제조시설의 구획 및 분리, 위생적인 환경 구축을 위한 설계 진행
- 전문가와의 사전 점검을 통해 현장실사에 대비한 기준 충족 여부 확인
- 공사 일정과 행정 등록 신청 일정의 병행 진행을 위한 전략적 계획 수립
2단계: 제조업 및 책임판매업 민원 동시 신청
- 제조시설 공사 진행 중 제조업 등록과 책임판매업 등록 민원 제출
- 책임판매업 등록 시 ‘직접 제조하여 판매하는 유형’으로 신청
- 식약청에 제조업 민원이 진행 중임을 고지하여 절차 순차 진행 요청
3단계: 식약청의 현장실사 및 서류 심사
- 식약청에서 시설 실사를 통해 제조 시설이 법적 기준에 맞게 설계·운영되는지 확인
- 사전에 컨설팅 받은 점검 항목에 따라 대비하여 실사 통과
- 제조시설 기준을 충족한 것으로 판단되면 등록 완료 및 영업 개시 가능

화장품 제조·판매 사업 운영 시 유의할 점
등록 이후에도 사업자는 지속적으로 식약청의 관리감독 대상이 됩니다. 화장품법에서 정한 제조·판매 기준 준수 여부에 대한 정기적인 관리감독이 이루어지므로, 등록 이후에도 전문가의 자문을 통해 준법 경영을 지속하는 것이 중요합니다.
화장품 제조 및 판매 등록 FAQ
많은 사업자가 자주 질문하는 내용을 정리하면 다음과 같습니다.
- 제조시설 면적 제한이 있나요?
- 제조시설 면적 제한은 없으며 제조 제품의 특성과 제형에 맞게 구성하면 됩니다.
- 제조업과 책임판매업 중 하나만 등록할 수 있나요?
- 제조하여 직접 브랜드로 판매할 경우 반드시 두 가지를 동시에 등록해야 합니다.
- 공사와 등록 신청은 언제부터 병행할 수 있나요?
- 제조시설 설계가 완료되고 착공이 시작될 때 등록 신청을 병행하면 기간을 단축할 수 있습니다.
청효와 같은 전문가 컨설팅의 중요성
화장품 제조와 판매 사업은 초기 설계 및 등록 단계부터 전문가의 컨설팅을 받는 것이 사업의 성공률을 높이는 핵심 요소입니다. 시설기준 점검부터 행정서류 제출까지 전문적인 자문을 받으면 빠르고 정확한 등록이 가능하며, 등록 이후 식약청의 감시 활동에도 체계적으로 대응할 수 있습니다.
'식품의약품안전처 > 화장품' 카테고리의 다른 글
| 2025 원아시아 화장품 규제혁신 포럼 개최 및 사전등록 안내 (0) | 2025.04.17 |
|---|---|
| 기능성화장품 보고 대상 이해하기: 1호, 2호, 3호 보고 대상 총정리 (1) | 2025.04.16 |
| 화장품법 위반 행정처분 집행정지 인용 사례 소개 (0) | 2025.03.24 |
| 화장품책임판매업 등록 업무 위임 사례와 효율적인 리스크 관리 전략 (0) | 2025.03.24 |
| 2025년 2월, 화장품 규제 및 행정처분 최신 동향 정리 (0) | 2025.03.18 |
댓글